2,5-Zimmer-Wohnung mit Wohnküche und West-Loggia in begehrter Lage

Objektdaten

Objekt-ID: W 834
Objektart: Etagenwohnung
Wohnfläche: 76,33 m²
Zimmer: 2.5
Etage: 1
Energieeffizienzklasse: C
Energieausweis: VERBRAUCH
Kennwert: 76,00
Baujahr: 1937

Objektbilder

verkauft

verkauft
verkauft

Objektbeschreibung

Dieses Objekt ist bereits verkauft.

Als 100%ige Tochtergesellschaft der Münchner Bank eG bieten wir Ihnen im Alleinauftrag diese schöne 2,5-Zimmer-Wohnung in Haidhausen-Steinhausen an.

Die in hochwertiger Bauweise errichtete Wohnanlage befindet sich in idealer Lage in Steinhausen, nur ca. 200 m entfernt von dem Stadtteil-Einkaufscenter "daseinstein" mit einem breiten Sortiment von Lebensmitteln, Drogeriewaren und Unterhaltungselektronik bis hin zu Medikamenten. Hier erwartet Sie nicht nur eine perfekte Infrastruktur mit zahlreichen Geschäften, Restaurants und Cafés, sondern auch eine ideale Anbindung.

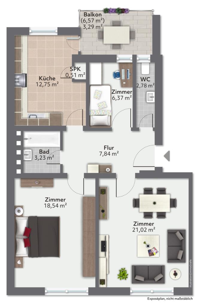
Die im 1. Obergeschoss gelegene Wohnung ist wie folgt aufgeteilt: Ein geräumiger Eingangsbereich, ein helles Wohnzimmer, ein Schlafzimmer, ein kleines Zimmer mit ca. 6,5 m², ein innenliegendes Badezimmer, ein WC mit Fenster und eine große Wohnküche. Von der Wohnküche aus, die mit einer praktischen Abstell- bzw. Speisekammer ausgestattet ist, haben Sie Zugang zur West-Loggia mit Ausrichtung zum ruhigen Innenhof. Das kleine Zimmer mit Fenster zur Westseite eignet sich sehr gut als Gästezimmer oder Büro.

Die Wohnung wird aktuell noch von dem Eigentümer bewohnt, ein Bezug ist nach Absprache kurzfristig möglich.

Lagebeschreibung

Die Immobilie befindet sich im Münchner Osten im schönen und gefragten Stadtteil Haidhausen (Steinhausen) und bietet alles für einen perfekten Freizeitwert und kurze Wege. Zahlreiche Bars, Restaurants, Geschäfte des täglichen Bedarfs, Banken und Ärzte sind fußläufig erreichbar und bieten ein umfassendes Angebot an Lebensqualität. Die verkehrsgünstige Lage zur Innenstadt und zum Flughafen sowie generell die optimale öffentliche Verkehrsanbindung (Tram, U-Bahn, S-Bahn, Busse) ergeben eine ausgezeichnete Wohnsituation. Mit dem Auto erreichen Sie in einer knappen halben Stunde den Flughafen und in gut 15 Minuten den Münchner Hauptbahnhof. Es besteht eine sehr gute Verkehrsanbindung an den Mittleren Ring und an die Autobahnen A 94 und A 8.

- Tram- und Bus-Haltestelle: ca. 120 m
- S-Bahn-Haltestelle: ca. 300 m
- U-Bahn-Haltestelle: ca. 600 m
- Einkaufszentrum "daseinstein": ca. 190 m
- REWE/Bäckerei: ca. 270 m
- Fitness First München: ca. 150 m
- Prinzregententheater: ca. 800 m
- Klinikum rechts der Isar: ca. 1,2 km
- Isarauen: ca. 1,6 km
- Englischer Garten: ca. 2,7 km
- Ostbahnhof: ca. 1,6 km
- Marienplatz: ca. 3,3 km
- Autobahn A94: ca. 900 m
- Flughafen München: ca. 33 km

Ausstattung

Fakten:

  • praktischer Grundriss
  • große West-Loggia zum Innenhof
  • Parkettboden in allen Wohnräumen
  • Küche mit Abstell-/Speisekammer
  • gepflegte Wohnanlage
  • für Kapitalanleger oder Selbstnutzer
  • begehrte Lage
  • perfekte Infrastruktur (ÖPNV/ PKW und Einkaufsmöglichkeiten)

Grundriss

Grundriss

Sonstiges

    Heizung/EnEV Erdgas, Verbrauch, 76 kWh/ (m²a), EEK C
zum Seitenanfang